См. Документы Министерства культуры Российской Федерации
МИНИСТЕРСТВО КУЛЬТУРЫ РОССИЙСКОЙ ФЕДЕРАЦИИ
ПРИКАЗ
от 25 июня 2025 г. N 1127
О ВКЛЮЧЕНИИ
ВЫЯВЛЕННОГО ОБЪЕКТА КУЛЬТУРНОГО НАСЛЕДИЯ (ПАМЯТНИКА
ИСТОРИИ И КУЛЬТУРЫ) НАРОДОВ РОССИЙСКОЙ ФЕДЕРАЦИИ
"КАЗАРМА ДЛЯ ЖАНДАРМСКОЙ КОМАНДЫ. ЗДАНИЕ ПОЛИЦЕЙСКОЙ ЧАСТИ.
АМБУЛАТОРИЯ ПРИ ЗАКОТОРОСЛЬНОМ ОТДЕЛЕНИИ ПОЖАРНОГО ДЕПО",
1838 Г., ВТОРАЯ ПОЛОВИНА XIX В., НАЧАЛО 1910-Х ГГ.
(ЯРОСЛАВСКАЯ ОБЛАСТЬ, ГОРОДСКОЙ ОКРУГ ГОРОД ЯРОСЛАВЛЬ,
ГОРОД ЯРОСЛАВЛЬ, МОСКОВСКИЙ ПРОСПЕКТ, ДОМ 55) В ЕДИНЫЙ
ГОСУДАРСТВЕННЫЙ РЕЕСТР ОБЪЕКТОВ КУЛЬТУРНОГО НАСЛЕДИЯ
(ПАМЯТНИКОВ ИСТОРИИ И КУЛЬТУРЫ) НАРОДОВ РОССИЙСКОЙ ФЕДЕРАЦИИ
В СОСТАВЕ ОБЪЕКТА КУЛЬТУРНОГО НАСЛЕДИЯ (ПАМЯТНИКА ИСТОРИИ
И КУЛЬТУРЫ) НАРОДОВ РОССИЙСКОЙ ФЕДЕРАЦИИ ФЕДЕРАЛЬНОГО
ЗНАЧЕНИЯ "АНСАМБЛЬ ЖАНДАРМСКИХ КАЗАРМ", КОН. XVIII - НАЧ.
XIX ВВ. (ЯРОСЛАВСКАЯ ОБЛАСТЬ, Г. ЯРОСЛАВЛЬ, МОСКОВСКИЙ
ПРОСП., 55, 55Б) В КАЧЕСТВЕ ОБЪЕКТА КУЛЬТУРНОГО НАСЛЕДИЯ
(ПАМЯТНИКА ИСТОРИИ И КУЛЬТУРЫ) НАРОДОВ РОССИЙСКОЙ ФЕДЕРАЦИИ
ФЕДЕРАЛЬНОГО ЗНАЧЕНИЯ И УТВЕРЖДЕНИИ ГРАНИЦ ЕГО ТЕРРИТОРИИ
В соответствии с пунктом 5 статьи 3.1 и статьей 18 Федерального закона от 25 июня 2002 г. N 73-ФЗ "Об объектах культурного наследия (памятниках истории и культуры) народов Российской Федерации", подпунктами 5.3.7 и 5.4.3 пункта 5 Положения о Министерстве культуры Российской Федерации, утвержденного постановлением Правительства Российской Федерации от 20 июля 2011 г. N 590, приказываю:
1. Включить выявленный объект культурного наследия (памятник истории и культуры) народов Российской Федерации "Казарма для жандармской команды. Здание полицейской части. Амбулатория при Закоторосльном отделении пожарного депо", 1838 г., вторая половина XIX в., начало 1910-х гг. (Ярославская область, городской округ город Ярославль, город Ярославль, Московский проспект, дом 55) в качестве объекта культурного наследия (памятника истории и культуры) народов Российской Федерации федерального значения в составе объекта культурного наследия (памятника истории и культуры) народов Российской Федерации федерального значения "Ансамбль жандармских казарм", кон. XVIII - нач. XIX вв. (Ярославская область, г. Ярославль, Московский просп., 55, 55б), вид объекта - памятник, в единый государственный реестр объектов культурного наследия (памятников истории и культуры) народов Российской Федерации.
2. Утвердить границы территории объекта культурного наследия (памятника истории и культуры) народов Российской Федерации федерального значения "Казарма для жандармской команды. Здание полицейской части. Амбулатория при Закоторосльном отделении пожарного депо", 1838 г., вторая половина XIX в., начало 1910-х гг. (Ярославская область, городской округ город Ярославль, город Ярославль, Московский проспект, дом 55) в составе объекта культурного наследия (памятника истории и культуры) народов Российской Федерации федерального значения "Ансамбль жандармских казарм", кон. XVIII - нач. XIX вв. (Ярославская область, г. Ярославль, Московский просп., 55, 55б) согласно приложению к настоящему приказу.
3. Контроль за исполнением настоящего приказа возложить на заместителя Министра культуры Российской Федерации, курирующего деятельность Департамента государственной охраны культурного наследия.
Министр
О.Б.ЛЮБИМОВА
Приложение
к приказу Министерства культуры
Российской Федерации
от 25 июня 2025 г. N 1127
ГРАНИЦЫ
ТЕРРИТОРИИ ОБЪЕКТА КУЛЬТУРНОГО НАСЛЕДИЯ
(ПАМЯТНИКА ИСТОРИИ И КУЛЬТУРЫ) НАРОДОВ РОССИЙСКОЙ ФЕДЕРАЦИИ
ФЕДЕРАЛЬНОГО ЗНАЧЕНИЯ "КАЗАРМА ДЛЯ ЖАНДАРМСКОЙ КОМАНДЫ.
ЗДАНИЕ ПОЛИЦЕЙСКОЙ ЧАСТИ. АМБУЛАТОРИЯ ПРИ ЗАКОТОРОСЛЬНОМ
ОТДЕЛЕНИИ ПОЖАРНОГО ДЕПО", 1838 Г., ВТОРАЯ ПОЛОВИНА XIX В.,
НАЧАЛО 1910-Х ГГ. (ЯРОСЛАВСКАЯ ОБЛАСТЬ, ГОРОДСКОЙ ОКРУГ
ГОРОД ЯРОСЛАВЛЬ, ГОРОД ЯРОСЛАВЛЬ, МОСКОВСКИЙ ПРОСПЕКТ, ДОМ
55) В СОСТАВЕ ОБЪЕКТА КУЛЬТУРНОГО НАСЛЕДИЯ (ПАМЯТНИКА
ИСТОРИИ И КУЛЬТУРЫ) НАРОДОВ РОССИЙСКОЙ ФЕДЕРАЦИИ
ФЕДЕРАЛЬНОГО ЗНАЧЕНИЯ "АНСАМБЛЬ ЖАНДАРМСКИХ КАЗАРМ",
КОН. XVIII - НАЧ. XIX ВВ. (ЯРОСЛАВСКАЯ ОБЛАСТЬ,
Г. ЯРОСЛАВЛЬ, МОСКОВСКИЙ ПРОСП., 55, 55Б)

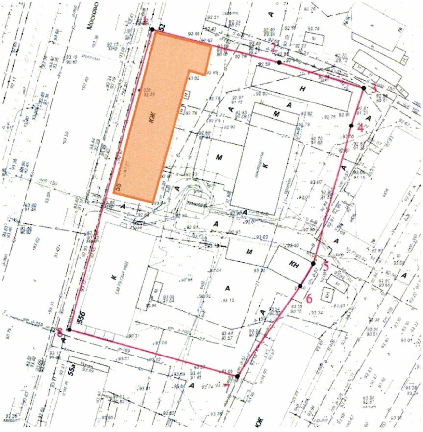
Условные обозначения:
|
|
- границы территории объекта культурного наследия (памятника истории и культуры) народов Российской Федерации федерального значения "Казарма для жандармской команды. Здание полицейской части. Амбулатория при Закоторосльном отделении пожарного депо", 1838 г., вторая половина XIX в., начало 1910-х гг. в составе объекта культурного наследия (памятника истории и культуры) народов Российской Федерации федерального значения "Ансамбль жандармских казарм", кон. XVIII - нач. XIX вв.;
|
|
|
- характерная точка;
|
![]() |
- объект культурного наследия (памятник истории и культуры) народов Российской Федерации федерального значения "Казарма для жандармской команды. Здание полицейской части. Амбулатория при Закоторосльном отделении пожарного депо", 1838 г., вторая половина XIX в., начало 1910-х гг.
|
Приложение
к границам территории объекта культурного
наследия (памятника истории и культуры)
народов Российской Федерации федерального
значения "Казарма для жандармской команды.
Здание полицейской части. Амбулатория
при Закоторосльном отделении пожарного
депо", 1838 г., вторая половина XIX в.,
начало 1910-х гг. (Ярославская область,
городской округ город Ярославль,
город Ярославль, Московский проспект,
дом 55) в составе объекта культурного
наследия (памятника истории и культуры)
народов Российской Федерации федерального
значения "Ансамбль жандармских казарм",
кон. XVIII - нач. XIX вв. (Ярославская
область, г. Ярославль, Московский просп.,
55, 55б), утвержденным приказом
Министерства культуры
Российской Федерации
от 25 июня 2025 г. N 1127
КООРДИНАТЫ
ХАРАКТЕРНЫХ ТОЧЕК ГРАНИЦ ТЕРРИТОРИИ ОБЪЕКТА КУЛЬТУРНОГО
НАСЛЕДИЯ (ПАМЯТНИКА ИСТОРИИ И КУЛЬТУРЫ) НАРОДОВ
РОССИЙСКОЙ ФЕДЕРАЦИИ ФЕДЕРАЛЬНОГО ЗНАЧЕНИЯ "КАЗАРМА
ДЛЯ ЖАНДАРМСКОЙ КОМАНДЫ. ЗДАНИЕ ПОЛИЦЕЙСКОЙ ЧАСТИ.
АМБУЛАТОРИЯ ПРИ ЗАКОТОРОСЛЬНОМ ОТДЕЛЕНИИ ПОЖАРНОГО ДЕПО",
1838 Г., ВТОРАЯ ПОЛОВИНА XIX В., НАЧАЛО 1910-Х ГГ.
(ЯРОСЛАВСКАЯ ОБЛАСТЬ, ГОРОДСКОЙ ОКРУГ ГОРОД ЯРОСЛАВЛЬ, ГОРОД
ЯРОСЛАВЛЬ, МОСКОВСКИЙ ПРОСПЕКТ, ДОМ 55) В СОСТАВЕ ОБЪЕКТА
КУЛЬТУРНОГО НАСЛЕДИЯ (ПАМЯТНИКА ИСТОРИИ И КУЛЬТУРЫ) НАРОДОВ
РОССИЙСКОЙ ФЕДЕРАЦИИ ФЕДЕРАЛЬНОГО ЗНАЧЕНИЯ "АНСАМБЛЬ
ЖАНДАРМСКИХ КАЗАРМ", КОН. XVIII - НАЧ. XIX ВВ. (ЯРОСЛАВСКАЯ
ОБЛАСТЬ, Г. ЯРОСЛАВЛЬ, МОСКОВСКИЙ ПРОСП., 55, 55Б)
|
Номер характерной точки
|
Координаты характерных точек (система координат МСК-76)
|
|
|
X
|
Y
|
|
|
1
|
373702,78
|
1329629,39
|
|
2
|
373692,56
|
1329667,46
|
|
3
|
373684,78
|
1329692,70
|
|
4
|
373673,48
|
1329688,94
|
|
5
|
373631,79
|
1329677,49
|
|
6
|
373625,00
|
1329673,55
|
|
7
|
373597,76
|
1329654,72
|
|
8
|
373611,82
|
1329604,32
|
|
1
|
373702,78
|
1329629,39
|
